Model Kopenhagen
Een Innovatieve Aanpak in Zorgwonen
vanaf € 155.000
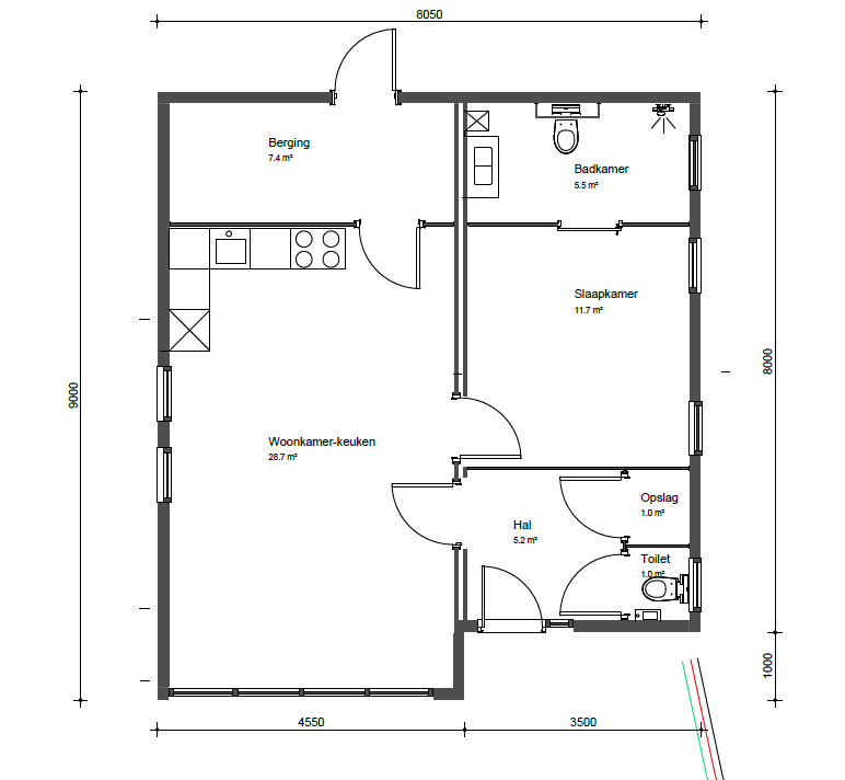
Ontdek Model Kopenhagen, een uitzonderlijke zorgwoning die het comfort en de rust van wonen aan het water combineert met de innovatie van modulaire bouw. Deze prachtige woning, bestaande uit drie units, is zorgvuldig samengesteld in onze fabriek in Emmen en rust op lange schroefpalen – een kenmerkende eigenschap van onze houtskeletbouw die zorgt voor een kostenefficiënte fundering.
Klant: Broers
Locatie: Tienhoven- Nieuwegein
Oppervlakte: 95 m2
Bouwjaar: 2021
Architect: Welzijnwoning

Ontworpen voor toegankelijkheid
Ruimtelijkheid staat centraal in het ontwerp van Model Kopenhagen. De mantelzorgwoning biedt ruime leefruimtes, inclusief een badkamer die niet alleen ruim is maar ook voorzien van een comfortabel bad, wat de toegankelijkheid voor mensen met verminderde mobiliteit verhoogt.
Onderhoudsarm Wonen
Voor de gevelbekleding is gekozen voor een innovatieve benadering met de onderhoudsarme cementvezelplaat, die de uitstraling van hout nabootst, compleet met zichtbare en voelbare nerven. Deze keuze verzekert een hoge isolatiewaarde voor dak, wanden, en vloer en ondersteunt de energiezuinigheid van de woning, verder versterkt door 14 zonnepanelen op het platte dak.


Vergunningvrij Bouwen: Gemak en Flexibiliteit
Model Kopenhagen valt, net als onze andere zorgwoningen, onder de regeling van vergunningvrij bouwen. Dit biedt de vrijheid om binnen de bebouwde kom tot 70 m^2 en daarbuiten tot 100 m^2 te bouwen zonder de noodzaak van een bouwvergunning, waardoor u snel en efficiënt uw ideale woonruimte kunt realiseren.
Een kort overzicht:
- Energiezuinig (hoge isolatiewaarde)
- Onderhoudsarm dankzij gekozen materialen
- Toegankelijk met verminderde mobiliteit
- Sociale ontmoetingsplek voor jong & oud
- 95 m2
- Beschikbaar vanaf € 155.000

Heeft u nog vragen?
Bekijk onze andere modellen
Model Stockholm
Vanaf €95.000
Het model Stockholm, beginnend bij €95.000, is een flexibele geschakelde mantelzorgwoning die aanpasbaar is aan elke kavel volgens uw voorkeuren. Volledig gefabriceerd in onze fabriek, worden de delen naadloos en onzichtbaar op de bestemming samengevoegd, wat resulteert in een kostenefficiënte en logisch ingedeelde leefruimte. Deze aanpak biedt de ideale combinatie van functionaliteit en economie, ontworpen om naadloos in elke omgeving te integreren.

Model Helsinki
Vanaf €74.000
Het model Helsinki, geprijsd vanaf €74.000, staat bekend als een innovatieve WMO-unit die direct via een drempelloze sluis verbonden is met het woonhuis. Speciaal ontworpen voor rolstoelgebruikers, biedt deze zorgunit een zeer ruime, toegankelijke badkamer en een naastgelegen slaapkamer die directe toegang geeft tot het hoofdhuis. Gelegen in Zwolle, beslaat deze unit een oppervlakte van 28 m² en is in 2022 gebouwd onder architectuur van Welzijnwoning. Het voldoet aan de specifieke behoeften van gemeenten en WMO-loketten, door een naadloze integratie met bestaande woningen te bieden en tegelijkertijd privacy en comfort te waarborgen voor de bewoner.

Model Tromso
Vanaf €76.000
Het model Tromso, startend bij €76.000, is een toonbeeld van compactheid en efficiëntie, ideaal voor zorgwoningen tot ongeveer 70m² met 1 of 2 slaapkamers. Volledig vervaardigd in de fabriek, vereist het op locatie slechts aansluiting op de nutsvoorzieningen om bewoonbaar te zijn. Met een oppervlakte van 58m², gebouwd in 2023 door Welzijnwoning, en beschikbaar in steden zoals Harderwijk, Ter Apel, Sneek, en Enkhuizen, biedt Tromso een snelle en praktische oplossing voor zorgbehoeften.
